Schulzentrum Kronberg

Bauzeit: 1972 - 1974
Architekt: Prof. G. Fesel & M. v. Törne, Darmstadt
Tragwerksplanung: Prof. S. Polonyi & Partner, Berlin

Meine Leistung als Angestellter:
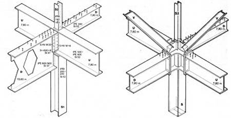
Technische Projektleitung und Ausführungsplanung des Stahl-Stahlbeton-Verbundbaus.

 
schließen