Werksanlage B. Braun in Melsungen

Bauzeit: 1987 - 1990
Architekt: J. Sterling, M. Wilford, W. Nägeli, London/Berlin
Tragwerksplanung: Prof. Polonyi & Fink GmbH, Berlin

Meine Leistung als freier Mitarbeiter:
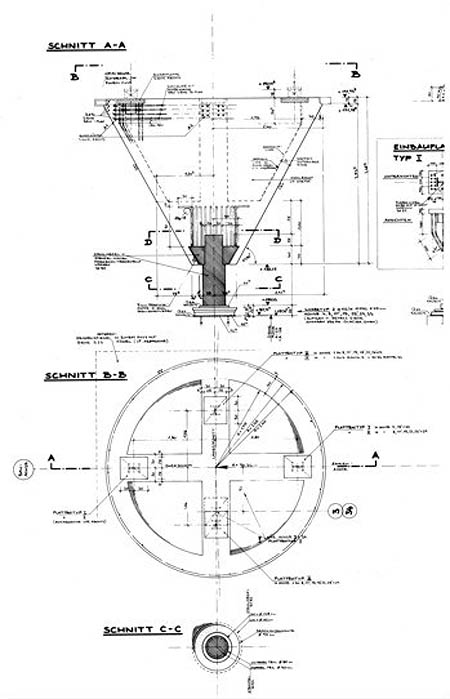
Koordinator aller Bauteile für die Ingenieurseite in regelmäßigen Bausitzungen und 3 Bauteile in Ausführungsplanung:
1. Verwaltungsgebäude mit EDV-Untergeschoß.
2. Lange Holzbrücke neben Parkhaus zur Kantine.
3. Auf und Abfahrts-Rotunden zum Parkhaus.

 
schließen